Un angolo di paradiso sul mare a L'ancora

315.000 €
105 m²
Superficie
3
Locali
1
Bagni
in vendita
porzione villa
Stintino [La Pelosa]
Descrizione
Nel cuore di una delle località più esclusive e ricercate al mondo, famosa per la sua bellezza naturale e la vocazione turistica, vi proponiamo una villetta indipendente della metratura di circa 105 mq dotata di posto auto di proprietà. Questa residenza si affaccia su uno dei panorami costieri più suggestivi e amati, a poca distanza a piedi dal comprensorio de " L'ancora", location esclusiva dove sono presenti spiaggia privata attrezzata, piscina, bar/ristorante, porticciolo e altri servizi di vario genere, per godere di un'esperienza di mare unica.
Il complesso edilizio sul quale sorge l'abitazione è stato completato nel 2011, secondo uno stile architettonico moderno e signorile, con materiali di pregio e spazi esterni curati nel dettaglio.
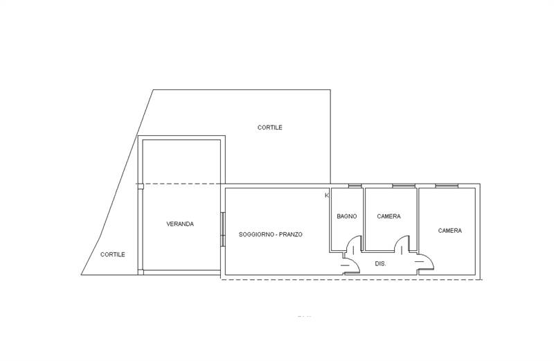
L' abitazione è dislocata su un unico livello e si compone di ampio cortile e patio riservato, offrendo uno spazio perfetto per pranzi all'aperto, momenti di relax o tramonti spettacolari. L' ingresso è sul soggiorno con cucina open space, un corridoio conduce alla zona notte, il bagno padronale e due camere da letto. L'immobile è stato costruito con eccellenti materiali e rifiniture, dotato di aria condizionato e impianto di riscaldamento e viene venduto completo di mobilia ed elettrodomestici in perfetto stato.
La casa offre la possibilità, di ospitare comodamente fino a 6 persone, ideale per famiglie o gruppi di amici in cerca di un rifugio esclusivo. Classe energetica B.

Invitiamo la Gentile Clientela, preventivamente alla visita, a contattare l' Agenzia DIMORE ITALIANE INVESTIMENTI IMMOBILIARI, lasciando il vostro recapito (nominativo e numero di telefono). Un nostro operatore vi ricontatterà il prima possibile per la verifica della disponibilità del prodotto e della sua precisa corrispondenza alla descrizione dell'annuncio. La visione degli immobili verrà effettuata previo sottoscrizione del rapporto di visita ed autorizzazione al trattamento dei dati personali. Il presente annuncio non costituisce elemento contrattuale.

DIMORE ITALIANE INVESTIMENTI IMMOBILIARI E' UN MARCHIO DI PROPRIETA' DI TIZIANO SATTA REAL ESTATE GROUP. TUTTI I DIRITTI RISERVATI.
Caratteristiche principali
Codice:
V000867
Città:
Stintino (La Pelosa)
Categoria:
Porzione Villa
Locali:
3
Bagni:
1
Mq:
105
Posti auto:
1
Piano:
Terra
Anno:
2011
Classe energetica:
B
Accessori
Aria Condizionata
Ingresso indipendente
Parco Condominiale
Veranda
Planimetrie
Mappa
Via Molfino - Stintino (SS)
Distanze
Posizione
Mare500 m
Cookie preference